Our Projects

Contact Info


  • 404, Shree Prasad House, 35th Road, Bandra (West), Mumbai 400 050

  • sanjay@sngconsultant.com
  • 022 2648 4986

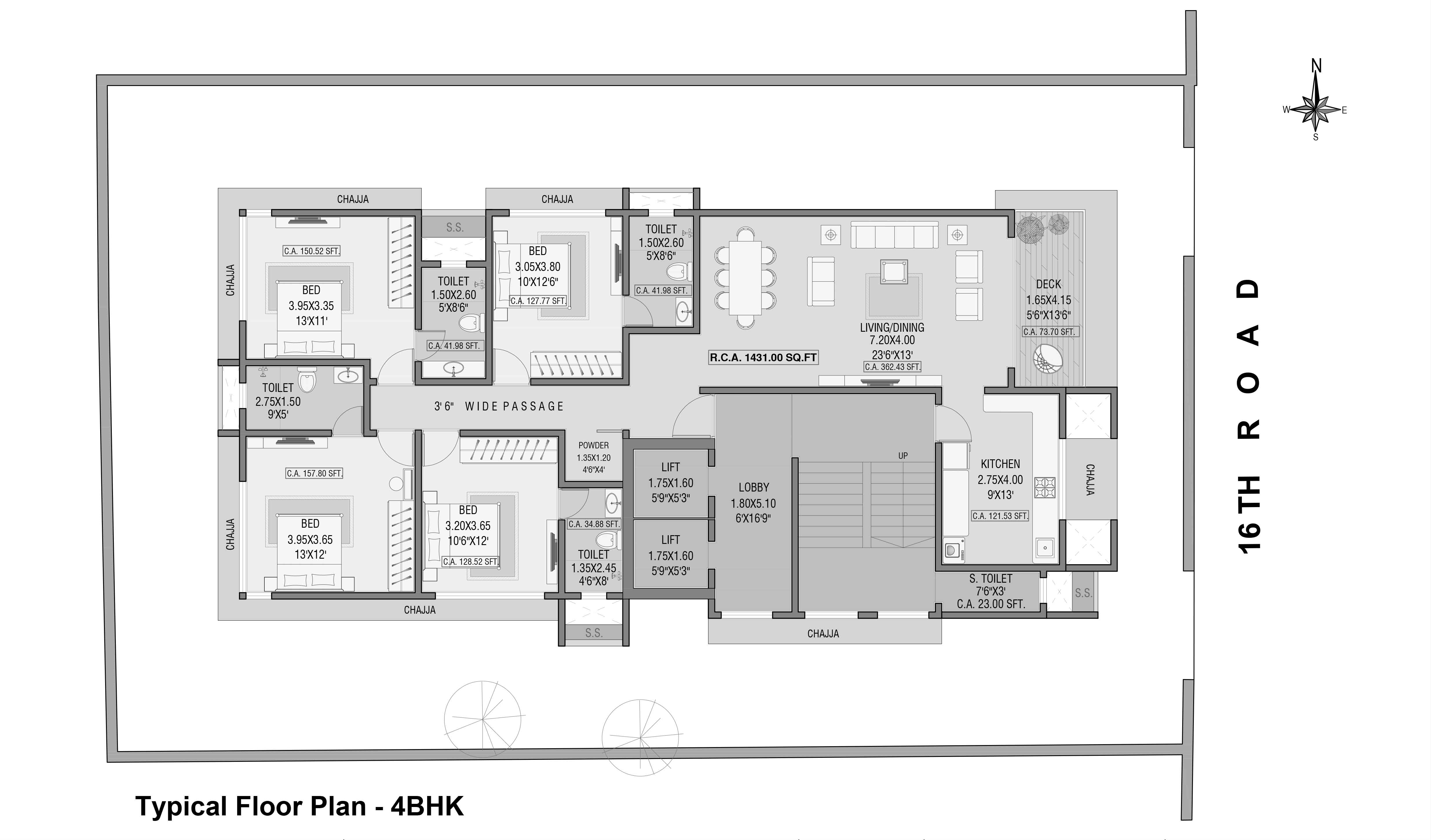
REKHAANSH

16th Road, Khar (W), Mumbai

Developer :
Kamal Laungani – TKL Infra

  • Plot Area : 393.00 sq.mt.
  • Total No. of apartments : 09
  • Total No. of parking provided : 26
  • Status : On going
  • Date of completion : 2023

Liaisoning Consultant : Yomesh Rao – YMS consultants

RCC Consultant : Er. Dwijen Bhatt

Brief :

A family home converted to a luxurious residential building; the client wished for all things luxury. Each floor is a single 4/3BHK apartment with a panoramic 360º view. With a separate back entry for the house help and one flat per floor it almost acts as a private villa in the midst of the city. The façade is a combination of earthy touches with a modern finish along with beautiful decks by the living room

Our Projects