Our Projects

Contact Info


  • 404, Shree Prasad House, 35th Road, Bandra (West), Mumbai 400 050

  • sanjay@sngconsultant.com
  • 022 2648 4986

GRAND EDIFICE

Kandivali (E), Mumbai

Developer :
Nilesh Modi – Rachanaa Developers
Housing Society

  • Plot Area : 1167.00 sq.mt.
  • Total No. of apartments : 64
  • Total No. of parking provided : 88
  • Status : On going
  • Date of completion : 2022

Liaisoning Consultant : Er. Yomesh Rao – YMS consultants

RCC Consultant : SACPL

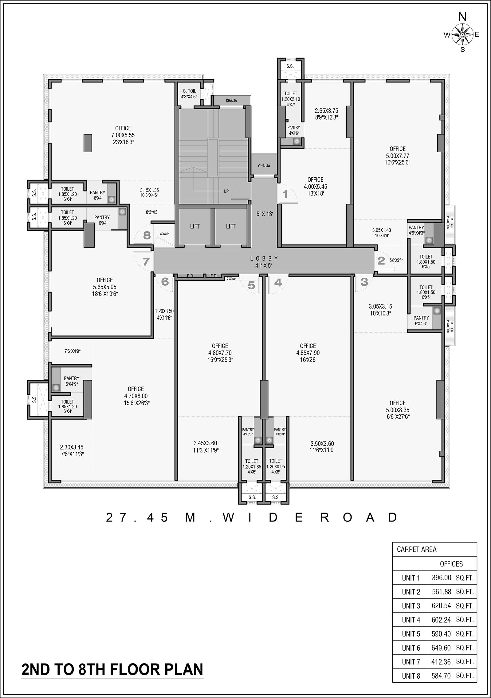
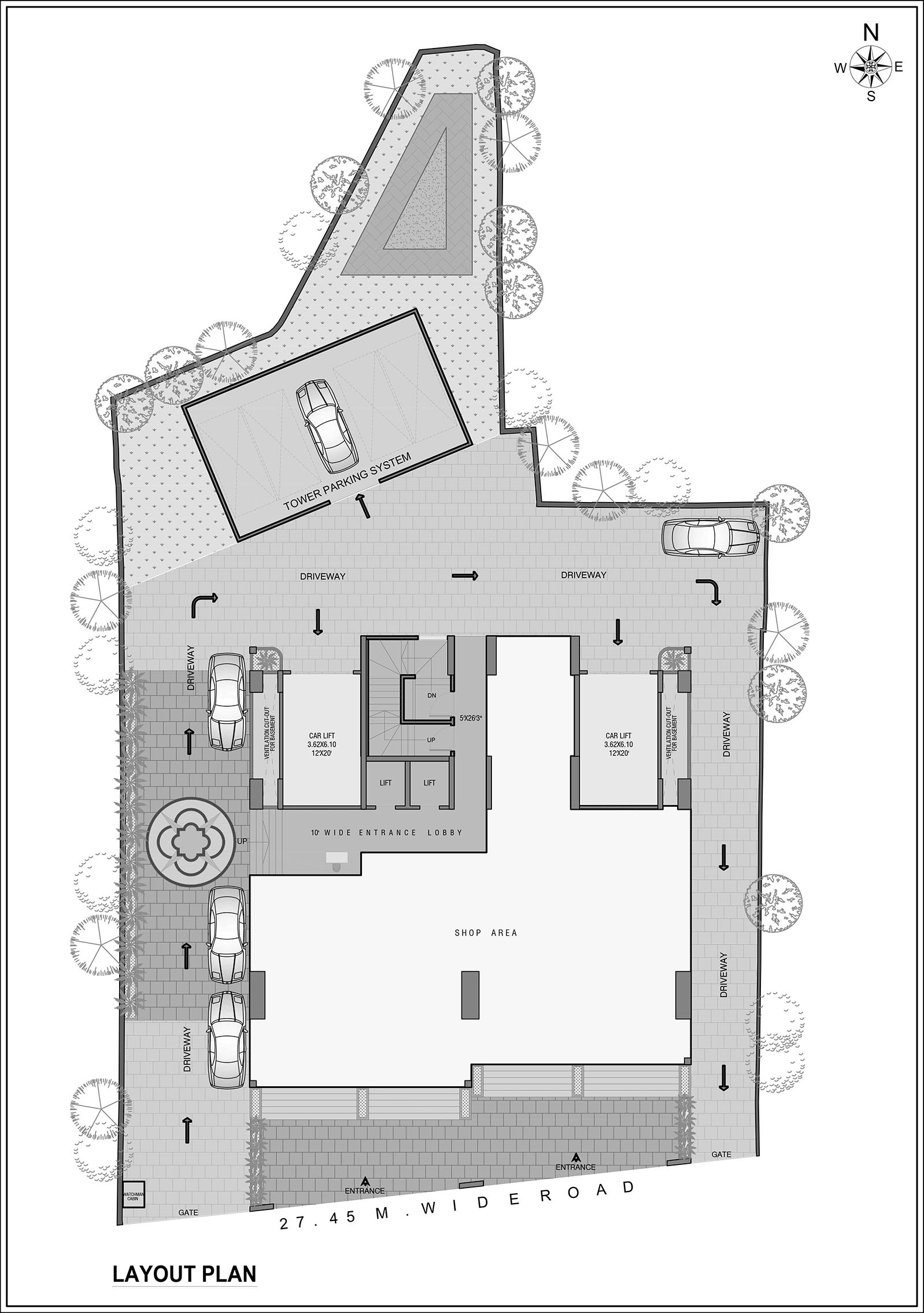
Brief :

With two lower level of shops with maximum frontage and rest of the storeys as office units, Grand Edifice is designed as per requirements of the real estate market currently. All the commercial spaces have view with glass glazing on all sides of façade of the building making the office spaces lively and more productive.

Our Projects